Rif. Bilocale moderno a Porporano - Bilocale con giardino privato e portico corte bozzani porporano unita' b4

Descrizione

  Posizione

Nella prima periferia sud di Parma, lungo Strada Argini a Porporano, proponiamo in vendita un elegante bilocale situato all’interno della storica Corte Ca’ Bozzani, complesso rurale dei primi del ‘900 oggetto di un importante intervento di demolizione e fedele ricostruzione.

Il progetto prevede la realizzazione di 8 unità residenziali di varie tipologie, con soluzioni tecnologiche e impiantistiche di ultima generazione, mantenendo il fascino originario della corte rurale ma con tutti i comfort moderni.


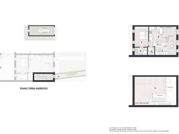
 Unità B4 – Bilocale con area verde privata

Bilocale disposto al piano terra della vecchia casa padronale verso Strada Argini.

L’appartamento gode di uno spazio verde privato verso Nord da cui si accede direttamente nella zona giorno. Verso sud , direttamente accessibile dalla camera e dalla zona centrale comune dell’Aia troviamo una generosa porzione di portico utilizzabile come seconda area esterna coperta.


 Distribuzione degli spazi:

-PRIMO PIANO: vano scala (4.75 mq), zona giorno con cucina (33.11 mq), ripostiglio (2.85 mq), bagno (4.95 mq) e camera matrimoniale (14.70 mq).


-PIANO SOTTOTETTO: zona impianti (5.97 mq) e sottotetto (31.25 mq).


 Superfici

-Superficie residenziale lorda: 82.26 mq

-Superficie accessoria lorda (sottotetto): 37.22 mq

-Giardino (incluse pavimentazioni esterne): 24.41 mq

-Autorimessa opzionale: 28,90 mq


Caratteristiche del progetto

-Classe energetica A4+

-Recupero architettonico fedele alla corte storica

-Impiantistica di ultima generazione

-Elevato comfort abitativo e risparmio energetico

-Possibilità di piscina privata per le unità di metratura maggiore

-Agevolazioni fiscali secondo normativa vigente: Sismabonus di euro 96.000

-Compreso nel prezzo: Garage e posto auto


Informazioni e appuntamenti

Per ricevere progetti, capitolato e ulteriori dettagli, è possibile fissare un appuntamento in ufficio.

Tel (Ufficio): 0521 1523010

Tel (Alberto): 3396304873



Prezzo

€ 348.000

Caratteristiche

Tipologia:

Casa Semi Indipendente

Contratto:

Compravendita Residenziale

Località:

Parma - Porporano

Superficie (mq):

82

Num. Vani:

2

Num. Camere:

1

Num. Bagni:

1

Cucina:

Abitabile

Riscaldamento:

Autonomo

Giardino:

Privato

Piscina:

Si

Condizioni:

Nuovo

Cl. Energetica:

A+++

IPE:

225 kWh/m2

Galleria fotografica

Contattaci ora, gratis e senza impegno

* Nome e Cognome:

* E-mail:

Telefono:

Oggetto:

Messaggio:
Presto il consenso al trattamento dei miei dati personali come specificato nella pagina dell'informativa Privacy

Presto il consenso a inviare al mio indirizzo di posta elettronica, periodiche informazioni sui servizi e sulle tariffe praticate.

Controllo Antispam*: Qual è il numero tra 7 e 9?