Rif. LV354B - Porporano corte bozzani - metrature personalizzabili - b4

Descrizione

NELLA PRIMA PERIFERIA A SUD DI PARMA, LUNGO LA STRADA ARGINI A PORPORANO, PROPONIAMO  L' ANTICA CORTE DI CA' BOZZANI DATATA PRESUBILMENTE INIZI DEL 1900.

IL PROGETTO PREVEDE IL RECUPERO DELL' INTERA CORTE IN CLASSE A+++ ATTRAVERSO LA DEMOLIZIONE CON FEDELE RICOSTRUZIONE ALL'ORIGINALE, E L' OPERAZIONE  PORTERA' ALLA REALIZZAZIONE DI 8 UNITA' RESIDENZIALI DI DIVERSO TAGLIO E DIMENSIONI OLTRE ALLA REALIZZAZIONE DI NUOVI VOLUMI DESTINATI ALLE AUTORIMESSE. L' OBIETTIVO DEL PROGETTO E' QUELLA DI CONSERVARE L' ANIMA DEL COMPLESSO RURALE CON TUTTI I CONFORT MODERNI, COME LA PISCINA SU RICHIESTA PER LE METRATURE PIù AMPIE

POSSIBILITà DI SGRAVI FISCALI SECONDO LA NORMATIVA VIGENTE

SOLUZIONI TECNICHE E IMPIANTISTICA DI ULTIMA GENERAZIONESOLUZIONI TECNICHE E IMPIANTISTICA DI ULTIMA GENERAZIONE

Per informazioni dettagliate su progetti e capitolato fissiamo appuntamenti in ufficio allo 05211523010


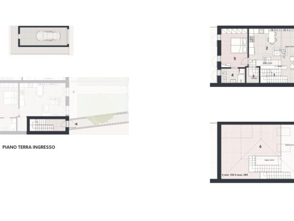
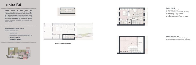
UNITA' B4

Bilocale CON SOTTOTETTO PERSONALIZZABILE  disposto al piano della vecchia casa padronale verso Strada Argini. L’ appartamento gode di uno spazio verde privato verso Nord da cui si accede direttamente nella zona giorno. Verso sud, direttamente accessibile dalla camera e dalla zona centrale comune dell’ Aia troviamo una generosa porzione di portico utilizzabile come seconda area esterna coperta. 

SUPERFICE RESIDENZIALE LORDA : 82.26 MQ

- SCALE: 13.00 MQ

- SOTTOTETTO: 44.20 MQ

- PORTICO: 30.15 MQ

GIARDINO (INCLUSE PAVIMENTAZIONI ESTERNE): 24.41 MQ

- AUTORIMESSA: 28.90




Prezzo

€ 348.000

Caratteristiche

Tipologia:

Casa Semi Indipendente

Contratto:

Compravendita Residenziale

Località:

Parma - Porporano

Superficie (mq):

82

Num. Vani:

2

Num. Camere:

1

Num. Bagni:

1

Cucina:

A vista

Riscaldamento:

Autonomo

Giardino:

Privato

Condizioni:

Nuovo

Cl. Energetica:

A+++

IPE:

225 kWh/m2

Galleria fotografica

Contattaci ora, gratis e senza impegno

* Nome e Cognome:

* E-mail:

Telefono:

Oggetto:

Messaggio:
Presto il consenso al trattamento dei miei dati personali come specificato nella pagina dell'informativa Privacy

Presto il consenso a inviare al mio indirizzo di posta elettronica, periodiche informazioni sui servizi e sulle tariffe praticate.

Controllo Antispam*: Qual è il numero tra 6 e 8?